Einfamilienhaus in Bishtazhin GJ (RKS)
für Familie R. (374 m²) Direktauftrag,
Projekt - Realisation.
2012-13
Das bebaute Grundstück liegt peripher am südöstlichen Dorfrand von Bishtazhin an leichter Hanglage. Die vorgefundene Hangkante definiert die Gebäudesetzung, wo ein massiver quadratischer Sockel die Hausebene abhebt. Westseitig in die Basis eingelassene Stufen führen ins Hausinnere. Von da zeichnet sich rund um eine zentral gerichtete gerade Treppe die tiefer gelegene Landschaft wieder ab. Das introvertierte Erscheinungsbild mit den gleichen Lochöffnungen verstärkt auch im Innern analog dem Sockel die Schwelle Haus Landschaft. Tritt der Baukörper im Aussenraum gleichmässig auf, zeichnet das gleiche Fensterformat im Innern verschiedene Umgebungsbilder in Abhängigkeit von Raumlage und -Tiefe. Das Haus baut auf einem gleichmässigen Zellenraster auf. Es gliedert das äussere Erscheinungsbild in zweigeschossige Rahmen, worin die Lochöffnungen mittig eingeschrieben sind. Raumbildende Rücksprünge wie Zugang und Terrassen verstärken diese Reliefbildung. Die Nutzungsanordnung erfolgt als Störung der Zellen. Strukturelle Öffnungen kreieren fliessende Raumübergänge, während Lochöffnungen private Nutzungen abtrennen.
Bishtazhin
Grundriss Erdgeschoss
Ansicht Nordost
Entrée
Wohnen
Wohnen-Essen mit Loggianische
Dreifamilienhaus in Wohlen AG
für Familie M. (999 m²) Eingeladener
Wettbewerb, 1. Preis mit Claudio Jung GmbH.
2013
Die projektierte Parzelle - nordöstlich von Wohlen - liegt in einem Wohnviertel mit solitären Bauten und grosszügigen Gärten. Die Bebauungsecke profitiert durch die Hanglage von der visuellen Offenheit und Weite. Ein topografischer Einschnitt öffnet die Parzelle zur tiefer gelegenen Strassenführung und nivelliert die Hanglage in einen ebenen Garten auf. Die direkte Erschliessung vom Sockelgeschoss zu den drei Wohneinheiten ordnet die Übergänge von öffentlich privat und dunkel hell. Die Volumengestalt entwickelt sich von einem organischen Massivkörper zu einem gleichmässigen Skelett. So dass mit der gewählten Setzung alle Räume unabhängig von ihrer Nutzung gleichsam an den direkten privaten Garten und an der visuellen Weitsicht teilnehmen können. Das Haus ist in eine Stützen-Platten-Struktur aufgebaut. 14 Stützen + Liftkern sind einem Raster von 7.40m eingeschrieben, welcher die Flexibilität in Bezug auf die Differenziertheit der Geschosse und der Wohnungen untereinander sichert. Die Lage der klimatischen Gebäudehülle innerhalb der Stützenreihe gliedert den Übergang Innen Aussen und sichert damit auch die Privatsphäre.
Wohlen
Grundriss Erdgeschoss
Gartenwohnung
Attikawohnung
Aufstockung Einfamilienhaus in Oberwil ZG
für Familie B. (337 m²) Direktauftrag,
Vorprojekt mit Claudio Jung GmbH.
2014
Unmittelbar am Ostufer vom Zugersee liegt das um 1963 erbaute Einfamilienhaus. Ein fliessender Übergang mischt Kern- und Wohnzone in einer heterogenen Siedlung zusammen. Direkt an der Siedlungsgrenze, umgeben das Haus unterschiedlich grosse Bauten. Westseitig öffnet sich die Seesicht zwischen den Punktbauten. Entgegen gesetzt zeichnet sich die Waldlandschaft mit steigender Topografie ab. Ein würfelähnliches Volumen mit Satteldach und rückwärtig angehängter Garage formt das bestehende Hausvolumen. Das Konzept basiert - gemäss vorgefundener Raumstruktur und gewünschtem Raumprogramm - auf eine Umkehrung der bestehenden Nutzung: Wohnen im Dachgeschoss und Schlafen im Erdgeschoss. Ein Skelett vergrössert die Gebäudegrundfläche und hebt das Dach vom massiven Volumen ab. Die neue Nutzfläche im Dachgeschoss ragt über den bestehenden Eingang aus und kreiert einen neuen Carport. Kammerartig introvertierte Zimmer reihen sich um das bestehende Entrée, welches zum extrovertierten Wohnen mit Panoramasicht führt. Die Verschiebung der Wandkante entlang der Gratlinie erzeugt eine kontinuierlich differenzierte Terrassentiefe, welche als trapezförmiger Sturz entlang dem neuen Walmdach sichtbar wird.
Oberwil
Grundriss Dachgeschoss
Blick zum Zugersee
Entrée
Wohnen mit Panoramablick
Umbau Erweiterung Einfamilienhaus in
Bremgarten AG für Familie D. (555 m²)
Direktauftrag, Vorprojekt.
2014
Das Wohnquartier `Am Rank` - südseitig von Bremgarten - weist eine Mischbebauung von Ein- und Mehrfamilienhäusern auf. Inmitten dieser differenzierten Struktur wird ein Einfamilienhaus um weitere vier Wohneinheiten um- und weitergebaut. Ein Quadrat im Grundriss greift in die bestehende Grundfläche ein. In der Volumetrie wächst das vorhandene Giebeldach in ein neues Pultdach über. Gleich dem Bestand tritt der neue Baukörper weiterhin als Solitär auf, wodurch der jetzige Dialog mit den umliegenden Häusern gewahrt wird. Dieser wird mit zweigeschossig allseitig gleichmässig angeordneten `Wandschlitzen` unterstrichen. Eine in dieser Öffnung eingeschobene gerade Treppe führt ins Hausinnere ein, wo der Zwischenraum Alt und Neu gefasst ist. Wie bestehend ist das Haus in Massivbauweise gedacht. Die homogen steinerne Gebäudehülle fasst die innenliegend differente Raumstruktur in ein ruhiges Ganzes zusammen. Je nach Nutzung und Glasanteil wird das Licht direkt oder über zweigeschossige Terrassen gedämpft ins Innere geführt. Der Lichteinfall über die Dachschräge inszeniert die Wandflächen von Bestand und Neu mit einem Licht- und Schattenspiel.
Bremgarten
Grundriss Dachgeschoss
Wohnen zwischen Bestand und Neubau
Übergang vom Sattel- zum Pultdach
Aussicht durch zweigeschossige Fassadenöffnungen
Ersatzneubauten in Nottwil LU
für die Genossenschaft Fenaco (8`287 m²)
Direktauftrag, Machbarkeitsstudie
mit Claudio Jung GmbH.
2014
Der Ort geniesst durch die Hanglage einen unvergleichbaren Ausblick über den Sempachersee bis hin zu den Alpen. Die parallel zur Wasserlandschaft abfallende Fläche ist in eine schmale, längs gerichtete Siedlungsstruktur gegliedert. Analog dieser Typologie führen drei identische Solitäre entlang der Kantonsstrasse die Körnung weiter. Die gleichmässige lineare Setzung der maximalen Gebäudetiefe erzeugt grosszügige Gebäudeabstände, welche das Berg- und Seepanorama umrahmen. Ein topographischer Einschnitt an der Strasse kreiert eine Übergangsschwelle zwischen öffentlich visuellem und privatem Freiraum, wo die Gebäudeerschliessung untereinander erfolgt. Die Schichtung fasst die viergeschossigen Baukörper mit der Attika in ein grosses Ganzes zusammen. Ein rautenförmiges Raster strukturiert die Grundform in ein regelmässiges plastisches Volumen. Diese Formüberlagerung dreht die Hausorientierung in diagonaler Richtung über, wodurch allen Wohnungen der Panoramablick geöffnet wird. Vom zentral gelegenen Treppenhaus entwickeln sich jeweils drei Geschosswohnungen. Die gleichmässige Rasterverteilung sichert einen flexiblen Wohnungsmix von jeweils 2- bis 5- Zimmerwohnungen.
Nottwil
Strukturkonzept
Blick vom Nordwesten
Gleichmässiger Raster zwischen Bebauung und Freiraum
Wohnen mit Übereck-Aussicht...
...diagonal zu den Nachbarbauten
Bauernhaus in Cham ZG
für M. S. (376 m²) Direktauftrag,
Machbarkeitsstudie - Bauprojekt.
2015
Die Bebauung Heiligkreuz fasst nordwestlich vom Dorfzentrum das gleichnamige Kloster mit einem landwirtschaftlichen Betrieb zusammen. Eine mittig geführte Strasse trennt die zwei Nutzungen und damit auch verschiedenen Strukturtypen voneinander ab. Während nordseitig einzelne Stallgebäude kleine Hofräume bilden, umschliesst eine weite Hofmauer die Klosteranlage in einem grossen Aussenraum zusammen. Infolge Nutzungstrennung wird der rein landwirtschaftlich genutzte Hofbetrieb um ein Wohnhaus für Betriebsleiter und Angestellte erweitert. Das Haus versucht die zwei Eigenschaften zu vereinen. Die angrenzend zur Strasse, westseitige Setzung des Neubaus führt die Struktur um einen weiteren Hof kohärent fort. Im Sinne der Klostermauer zonieren zwei Mauern den Wohnraum in der offenen Landschaft. Von Lärm- und Geruchsimmissionen abgewandt öffnet sich ein gemeinsam genutzter Raum zum Erschliessungshof und zur weiten Naturlandschaft über. Darüber spannt sich eine Decke auf einem zentralen Kern, welche drei Wohnungen von der Topographie abhebt. Zwei auf die `Hofmauern` abstützende Dachschrägen lassen das Haus in einer verwandten Formensprache einheitlich mit den Landwirtschaftsbauten erscheinen.
Lindencham
Grundriss Erdgeschoss
Hoferweiterung
Wohnen am Bauernhof
Erschliessung von Wohnen und Arbeiten
Gemeinsamer Wohngarten
Durchwohnen zwischen Hof und Landschaft
Einfamilienhaus in Oberägeri ZG für REMAX
Zug - A. Gilomen (327 m²) Direktauftrag,
Machbarkeitsstudie mit Claudio Jung GmbH.
2015
Peripher vom Ortszentrum weitet sich an steiler Hanglage die Siedlung Im Böschi. Kleine Solitärbauten modellieren gleichmässig die Siedlung. Direkt an der Hangkrone orientiert sich der Bauplatz mit unvergleichbarer Sicht auf den Ägerisee und die Alpen. Durch die topographische Lage geniesst es allseitige Privatsphäre. Diese einmalige Lage definiert die Projektprämisse das Haus als Aussichtsplattform zu gestalten. Aus der schiefen Ebene wachsen vier raumhaltige Kammern auf dreigeschossiger Höhe hinauf. Zwischen diesen vergrösserten Stützen schweben die `Aussichtsräume`. Die Erschliessungsstrasse führt direkt im Zentrum dieser Kammern. Eines von denen funktioniert auf unterster Ebene als Hauseingang und verbindet die Hangebene mit den darüber liegenden Aussichtsplatten. Gleich der Struktur - einem Stützen-Platten-System ähnlich - dienen die vier Kammern den Haupträumen als Nebennutzungen. Sie funktionieren nebst der Vertikalerschliessung als Küche, Bad, Abstell- und Technikraum. Entsprechend dem Inhalt treten diese vertikal gestapelten, verschlossenen Räume in einen Kontrast zu den extrovertierten Haupträumen. Sie rahmen wechselnde Sichtbezüge zwischen Aussen- und Innenraum.
Oberägeri
Grundriss Parterre
Erschliessung vom Südosten
Wohnen über dem Ägerisee
Schulhauserweiterung Riedmatt in Zug für das
Baudepartement Stadt Zug Abteilung Städtebau
(2`727 m²) Projektwettbewerb offen.
2015
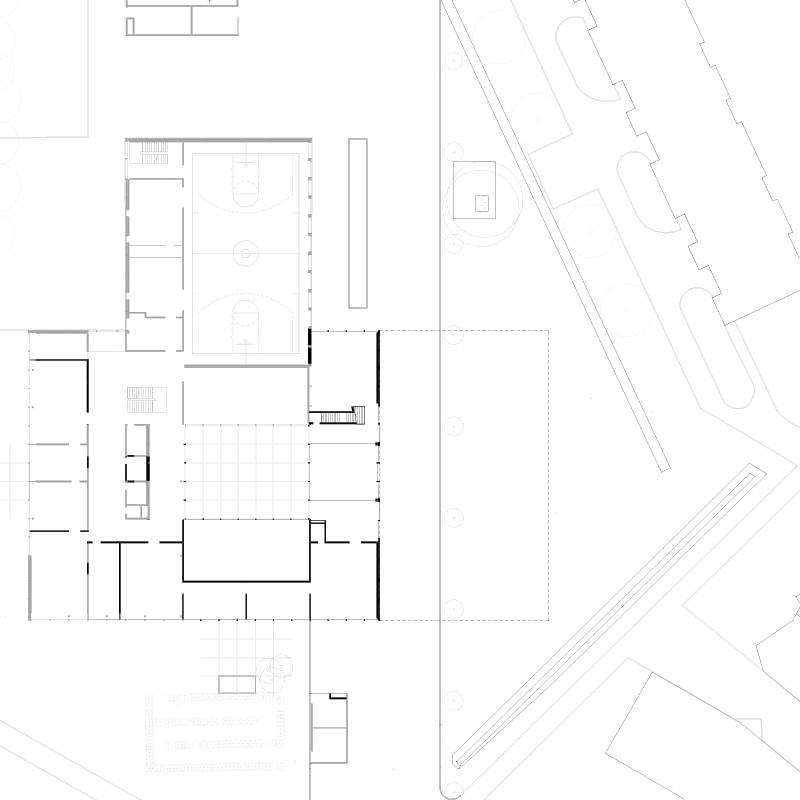
Die bestehende - in ihrer Ausrichtung zum Kontext - versetzte Schulanlage bildet den Ausgangspunkt der Projektidee. Die dreigeschossige Verlängerung des Schultraktes in seiner ganzen Tiefe bis zur Baulinie hin definiert das maximale Volumen für das zukünftige Schulhaus. Abgewandt vom öffentlichen Park erschliesst ostseitig ein breiter Korridor zwischen Veloweg und Riedmatt das Schulhaus gleich wie bestehend. Diese vorgelagerte Nord-Süd-Achse soll längerfristig als Hausadresse funktionieren. Sie wird bei vorliegender Erweiterung Teil der inneren Erschliessung. Während das Haus wächst bleibt der nördlich gelegene Pausenplatz ein Ganzes rund um die Turnhalle zusammen mit den Spielfeldern und der schulergänzenden Betreuung - die Erschliessung bleibt erhalten. Die vorgefundene Lage der Aula und diejenige der Unterrichtsräume definieren die Organisation der Gesamtanlage. Die Versetzung der Bibliothek vis-a-vis der Aula wandelt den bestehenden Pausenplatz zur neuen Eingangshalle. Diese Raumanordnung kreiert mit dem Erweiterungspotential eine einheitliche Schalenform über die gesamte Ebene. Wechselbeziehungen durch verschiedene Nutzungen lassen das Schulhaus als Ganzes erlebbar wahrnehmen.
Zug - Riedmatt
Grundriss Erdgeschoss mit Erweiterungskonzept
Blick vom Chamer Fussweg
Erschliessung vom Riedmattquartier mit Erweiterungskonzept
Eingangshalle am ehemaligen Pausenplatz
Lehrerzimmer im Zentrum der Schule
Lernlandschaft
Erweiterung als Pendant zur geplanten Lorzenüberbauung
Zentrum mit Wohn- und Gewerbebebauung in
Luzern für die Katholische Kirchgemeinde LU
(6`347 m²) Projektwettbewerb offen.
2016
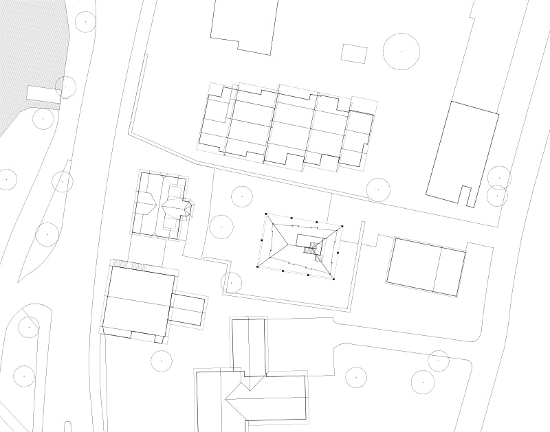
Nordöstlich vom Stadtzentrum wächst das Kapuzinerkloster Wesemlin an erhöhter Lage auf einem Plateau. Eine heterogene - der Topographie entsprechend - gerichtete Körnung prägt rund um die Anlage das Ortsbild. Gegenüber vom Kloster trennt eine Strassenkreuzung die projektierende Parzelle zwischen einer Punkt- und Zeilenbebauung. Ein Vorplatz akzentuiert diese Übergangsschwelle. Innerhalb vom Wohnquartier wird das Bebauungslayout mit gleicher Körnung bis zur Baulinie fortgeführt. Zurückversetzt vom Abendweg formen zwei neue Volumen - ähnlich dem Bestand - den neuen Quartierplatz. Kernartig erschliesst es sämtliche Nutzungen wie Mehrzwecksaal, Kleinläden, Grossverteiler, Wohnungen und führt mit einer raumbreiten flachen Treppe zur höher gelegenen Hangebene über. Die grösste Nutzungsfläche verbindet hangseitig die zwei schlanken Gebäudezeilen zu einer U-Form. Ein durchgehendes Raster fasst die Gebäudeteile in ein rhythmisiertes Grossvolumen zusammen. Dieses einheitliche Erscheinungsbild wird mit der gleichen vertikalen Schichtung in Sockel-, Mittel- und Attikapartie verstärkt. Wechselnde Raumbezüge zur Plaza und Umgebung prägen die diagonal gerichteten Wohnungen.
Luzern
Grundriss Parterre
Blick vom Abendweg
Das Zentrum gegenüber dem Klostergarten
Die Plaza zwischen Klosterhof und Hochparterre
Diagonales Durchwohnen zwischen Plaza und Umgebung
Fliessender Übergang vom Entrée...
...Wohnen, Essen und Kochen
Doppelkindergarten mit Tagesstrukturen in
Huttwil für die Einwohnergemeinde Huttwil BE
(659 m²) Projektwettbewerb offen.
2017
Ein Plateau - inmitten der Hangebene - formt das Schulareal Städtli in Huttwil. Die Einbettung des Neubaus für den Kindergarten am südöstlichen Dorfrand erlaubt es, das bestehende im Denkmalschutz inventarisierte Ensemble aus Schulhaus und Turnhalle in voller Geltung bestehen zu lassen und nicht damit zu konkurrenzieren. Mit der Fortführung der Plateaumodellierung entsteht für Kindergarten und Hort ein intimer Ort, der durch die Böschung nach Süden hin geschützt und eingegrenzt wird. Das traditionelle Bauernhaus aus dem bernischen Flachland dient als Referenz für die Gebäudetypologie und Struktur. Gleich dem Vorbild richten sich die Kindergärten an den Stirnseiten mit fliessendem Übergang zur Aussenraumnutzung. Der Hort zusammen mit der Küche - dem gesamten Schulareal dienend – liegt an der Hausachse. Im Dachraum weiten sich die Gruppen-, Mal- und Besprechungsräume als offene Raumlandschaft in direktem Sichtbezug zu den Hauptnutzungen über die darunter fliessende Hangebene aus. Analog der Nutzung stützt ein regelmässiges Holzskelett das Walmdach, welches sämtliche Nutzungen in einer Einheit zusammenfasst und das Haus als Ganzes erlebbar gestaltet.
Huttwil
Schulareal Städtli
Stützmauer - als Plateauerweiterung - verbindet Alt und Neu
Der Kindergarten in Bezug zur `alten` Turnhalle
Raumabfolge zwischen Innen - Aussen ...
...bis zur Dachhalle als Ganzes erlebbar